Plot for sale in Elviria Plot for sale in Elviria

Build Your Dream Home – Plot with License and Modern Villa Project

Elviria, Marbella, Malaga province

549.000 €

1.042 m² plot

Plot for sale in Elviria

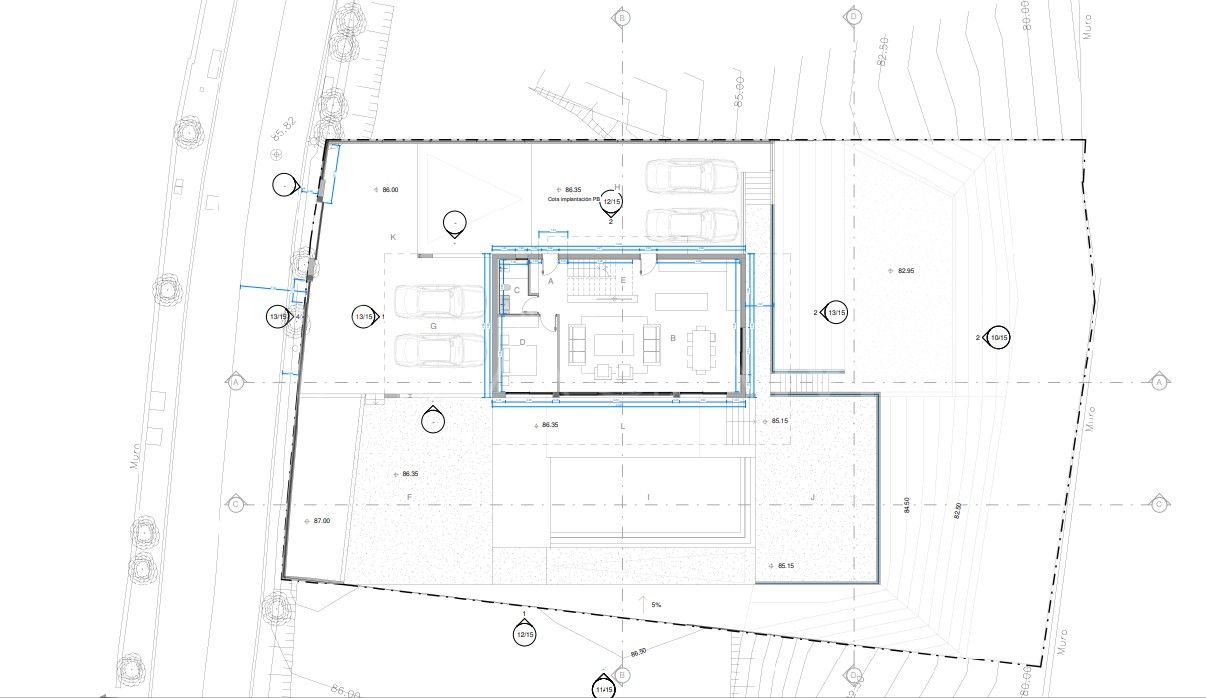
This 1,042 m² plot in the desirable residential area of Elviria offers a rare opportunity to build a spacious and modern home, complete with approved building license and project design. Set among natural surroundings with sea views, the plot provides a 25% buildability, allowing for over 200 m² of living space.

The current project designs 4-bedroom, 3-bathroom villa spans an impressive 208m² of living space on a generous 1042m² plot.
Designed with a contemporary and thoughtful approach, this 2-level property offers an optimized distribution of space, ensuring natural illumination and ventilation in every room. There’s a strong emphasis on efficient use of space and energy, leaving no room for wastage.
Upon entering the villa, you’re greeted by a spacious entrance hall featuring closets. This leads to the roomy living area, seamlessly connected to an open-plan kitchen with an integrated island. Large, energy-efficient windows stretch from floor to ceiling, providing direct access to the pool and garden. A guest toilet is also conveniently situated on the ground floor.

The living room on the ground floor is thoughtfully designed to make the most of the stunning Costa del Sol views, creating a captivating atmosphere.
The floating glass staircase takes you to the upper floor, where you’ll find two generous bedrooms with ample built-in storage, sharing a well-appointed bathroom. The master bedroom boasts an ensuite bathroom and a spacious walk-in closet.

Access the roof terrace directly from the first floor via a well-designed staircase. It comes pre-equipped for solar panels, reflecting modern sustainability practices.

This villa’s interior combines style, functionality, and eco-consciousness, offering a comfortable and luxurious living environment. Contact us for more details and to explore this exceptional property further.
The outdoor area is equally impressive, offering spacious covered terraces, a beautiful private pool, a landscaped garden, and your very own private parking space for two cars, seamlessly connected to the villa.

Additionally, there is an option to customize the project by adding a full basement with exciting possibilities, including a cinema room, game room, laundry room, separate kitchen, wine cellar, sauna, and the potential to create extra rooms if needed.

Property Details

  • W-0475C2
  • Plot
  • 1.042 m² Plot
  • Mountain view
  • Panoramic view
  • Sea view

Price, costs & taxes

  • Asking price 549.000 €
  • Plot m² 1.042 m²
  • Price per m² Plot 527 €

The sale price does not include expenses and taxes. Additional costs for the buyer: registration and notary fees, ITP (Transfer Tax) or in its absence VAT, and AJD (Stamp Duty) on new properties and subject to some requirements to be met. These costs and taxes are different depending on the province / autonomous community where the property is located and even on certain specific aspects of the buyer. All details and information sheet are available upon request from Engel Völkers Marbella. This information is subject to errors, omissions, modifications, prior sale or withdrawal from the market.

About the building

Listing agent

Engel Völkers Marbella

Engel Völkers Marbella Real Estate agents in Marbella

Location

  • Elviria
  • Marbella
  • Malaga province

Disclaimer This is a property advertisement (REF W-0475C2) provided and maintained by Engel Völkers Marbella, La Poveda, Local 5 - Blv. Príncipe Alfonso de Hohenlohe, CN 340 Km 178.229600 MarbellaMálaga, and does not constitute property particulars. Whilst we require advertisers to act with best practice and provide accurate information, we can only publish advertisements in good faith and have not verified any claims or statements or inspected any of the properties. MalagasMLS.com does not own or control and is not responsible for the properties,website content, products or services provided or promoted by third parties and makes no warranties or representations as to the accuracy, completeness, legality, performance or suitability of any of the foregoing. We therefore accept no liability arising from any reliance made by any reader or person to whom this information is made available to.

Other property options

Plot - Elviria, Marbella, Malaga province