Duplex Penthouse for sale in Sitio de Calahonda, Mijas Costa
Near golf, Sitio de Calahonda, Mijas Costa, Malaga province
725.000 € Updated 12 days ago
150 m² built, 4 bedrooms, 3 bathrooms, pool (communal), garden (communal), garage (communal)
Buy duplex penthouse in Sitio de Calahonda
Renovated duplex penthouse, finished with exclusive luxury materials!!
The duplex penthouse enjoys a great location between Fuengirola and Marbella, offering easy access to both towns. It features beautiful views of the sea and the mountains, creating a stunning backdrop for everyday living. Just a one-minute walk from two popular restaurants, Miel y Nata and The Family, as well as the vibrant Millennium Bar & Nightclub. It’s also only a few minutes away from well-known beach destinations such as Max Beach (2.5 miles), Cabopino Beach (1.5 miles), and Marbella center (9 minutes by car).
This penthouse has been fully upgraded with top-quality materials and features:
- A brand-new Porcelanosa kitchen with modern electrical installations
- Two new Porcelanosa bathrooms and a guest toilet, all with updated electrics
- New aluminum sliding doors on the first floor
- Professional plastering of three bedrooms and the living room
- Four terraces, all treated with Capafinad
- Three new air conditioning units
- A new large water heater for the master bathroom
A total renovation investment of approximately €120,000
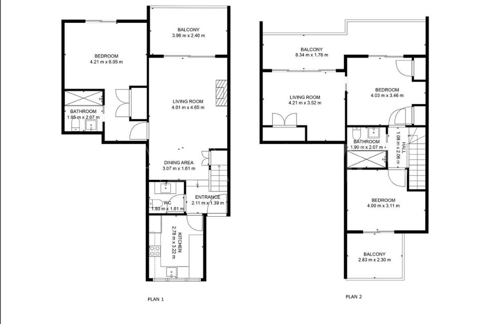
Spread over two floors, the penthouse includes:
- Three double bedrooms with sea and mountain views, including a master bedroom with en-suite
- Four private terraces with sun from morning to evening
- Two spacious TV rooms, each equipped with Smart TVs (three in total)
- Two dining areas for both formal and casual dining
This penthouse offers a rare combination of peace, privacy, and close proximity to Marbella’s best attractions. A unique opportunity for anyone seeking luxury and comfort on the Costa del Sol.
Property Details
- 833-00047P
- Duplex Penthouse
- 4 Bedrooms
- 3 Bathrooms
- 150 m² Built
- 29 m² Terrace
- Pool (Communal)
- Garden (Communal)
- Garage (Communal)
- Air conditioning
- Balcony
- Brand new
- City views
- Close to golf
- Close to restaurants
- Close to sea / beach
- Close to shops
- Close to town
- Double glazing
- Excellent condition
- Fireplace
- Fully fitted kitchen
- Fully furnished
- Garden view
- Gated community
- Guest apartment
- Internet - Fibre optic
- Internet - Wi-Fi
- Marble floors
- Panoramic view
- Pool view
- Private terrace
- Sea view
- Transport near
Price, costs & taxes
- Asking price 725.000 €
- Built m² 150 m²
- Price per m² Built 4.833 €
- IBI 631 € / year
- Garbage 110 € / year
- Community Fee 165 € / month
The sale price does not include expenses and taxes. Additional costs for the buyer: registration and notary fees, ITP (Transfer Tax) or in its absence VAT, and AJD (Stamp Duty) on new properties and subject to some requirements to be met. These costs and taxes are different depending on the province / autonomous community where the property is located and even on certain specific aspects of the buyer. All details and information sheet are available upon request from Asbo Estates. This information is subject to errors, omissions, modifications, prior sale or withdrawal from the market.
About the building
- Year Built 1986
- Floors 2
- Levels 2
- Property type Duplex Penthouse
- EPC In Progress
Listing agent

Asbo Estates Real Estate agents in Mijas Costa
Location
- Sitio de Calahonda
- Mijas Costa
- Malaga province
Disclaimer This is a property advertisement (REF 833-00047P) provided and maintained by Asbo Estates, Centro comercial El Zoco, Local 11629649 CalahondaMálaga, and does not constitute property particulars. Whilst we require advertisers to act with best practice and provide accurate information, we can only publish advertisements in good faith and have not verified any claims or statements or inspected any of the properties. MalagasMLS.com does not own or control and is not responsible for the properties,website content, products or services provided or promoted by third parties and makes no warranties or representations as to the accuracy, completeness, legality, performance or suitability of any of the foregoing. We therefore accept no liability arising from any reliance made by any reader or person to whom this information is made available to.