
1.057 m² parcelle
Near golf, Estepona, Malaga province
350.000 €
880 m² plot
Terrain constructible à vendre à Estepona – 880 m² avec options de développement flexibles
Ce terrain de 880,33 m² situé dans un quartier résidentiel en pleine expansion d'Estepona représente une excellente opportunité de construire une villa privée à seulement quelques minutes de la plage, des parcours de golf et de toutes les commodités.
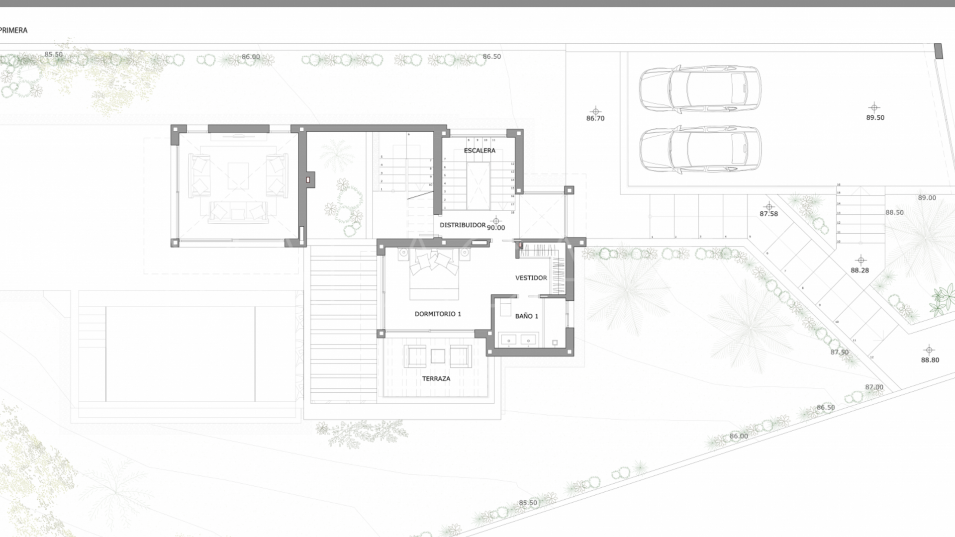
La propriété comprend des fondations existantes, offrant deux options claires à l'acheteur potentiel :
Option 1 : Construire une villa sur les fondations structurelles existantes (projet d'exécution disponible).
Option 2 : Retirer les fondations actuelles et concevoir un tout nouveau projet à partir de zéro.
Dans les deux cas, l'acheteur devra déposer un nouveau projet architectural et demander un permis de construire auprès de la mairie.
Situé dans un quartier calme mais bien desservi d'Estepona, ce terrain est idéal pour les acheteurs privés, promoteurs ou investisseurs souhaitant construire une villa moderne avec piscine, jardin et espaces ouverts. Avec une bonne exposition au soleil et un accès facile à Estepona, Marbella, Puerto Banús et à l'aéroport de Malaga, l'emplacement offre une forte valeur ajoutée et un style de vie recherché.
Caractéristiques principales :
Surface du terrain : 880,33 m²
Adapté pour la construction d'une villa avec piscine
Quartier résidentiel calme
Proche des golfs, plages et commodités
Excellent potentiel d'investissement
Ne manquez pas cette occasion de construire votre maison idéale dans l'un des plus beaux emplacements côtiers du sud de l'Espagne.
LAISSEZ-NOUS VOUS DÉMÉNAGER !
The sale price does not include expenses and taxes. Additional costs for the buyer: registration and notary fees, ITP (Transfer Tax) or in its absence VAT, and AJD (Stamp Duty) on new properties and subject to some requirements to be met. These costs and taxes are different depending on the province / autonomous community where the property is located and even on certain specific aspects of the buyer. All details and information sheet are available upon request from CarlingPetri. This information is subject to errors, omissions, modifications, prior sale or withdrawal from the market.
CarlingPetri Real Estate agents in Estepona
Disclaimer This is a property advertisement (REF CP004010) provided and maintained by CarlingPetri, Los Gladiolos, Local 3-A, 4, Baja 29660, Marbella, Malaga, and does not constitute property particulars. Whilst we require advertisers to act with best practice and provide accurate information, we can only publish advertisements in good faith and have not verified any claims or statements or inspected any of the properties. MalagasMLS.com does not own or control and is not responsible for the properties,website content, products or services provided or promoted by third parties and makes no warranties or representations as to the accuracy, completeness, legality, performance or suitability of any of the foregoing. We therefore accept no liability arising from any reliance made by any reader or person to whom this information is made available to.