Magnifique Maison au coeur de Fuengirola
Fuengirola Centro, Fuengirola, Malaga province
1.100.000 €
259 m² built, 5 bedrooms, 3 bathrooms, 108 m² plot
Maison for sale in Fuengirola Centro
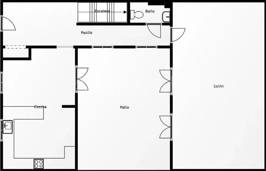
Nous vous présentons cette belle maison, située au cœur de Fuengirola, un joyau restauré avec amour dans le respect de ses origines historiques. La propriété conserve des caractéristiques originales qui ajoutent du caractère et de l’exclusivité, comme son charmant patio Sevillan et des rampes soigneusement restaurées qui ont plus de 150 ans, ainsi qu’un plafond en bois sculpté au-dessus du patio, conçu spécialement pour cette maison.
Située sur une rue semi-pédérienne à seulement 200 mètres de la plage, cette maison allie la tranquillité nécessaire pour profiter de ses environs sans sacrifier la proximité du quartier de divertissement du centre-ville, des bars et des magasins. La qualité de la construction est luxueuse, visible à chaque tour.
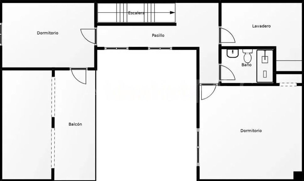
La maison dispose de cinq chambres spacieuses, toutes équipées de placards intégrés et de systèmes de climatisation. Il dispose également de trois salles de bains complètes, d’une toilette supplémentaire et d’une buanderie. Le salon-salle à manger de 40 m2 se distingue par sa cheminée centenaire en parfait état de fonctionnement et ses grandes fenêtres qui permettent une lumière naturelle abondante. Du salon, les portes en faux bois mènent à un magnifique patio central de style Sevillan, apportant lumière et sérénité à toute la maison.
La cuisine en chêne est entièrement équipée avec un comptoir et un lavabo en marbre de Macao. Toutes les chambres disposent d’un chauffage au sol avec des carreaux décoratifs de style Sevillan et des fenêtres inclinables avec un verre Climalit et un système de sécurité.
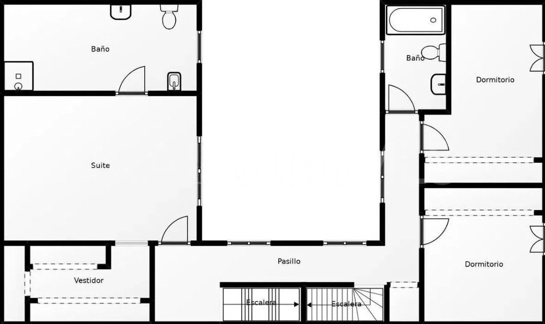
Au deuxième étage, il y a une terrasse idéale pour profiter du climat méditerranéen, ainsi qu’un espace de rangement. La chambre principale dispose d’un élégant dressing en acajou et d’une salle de bains privative équipée d’une douche et d’un bain à remous.
Les portes en acajou massif avec des linteaux sur mesure ajoutent une distinction supplémentaire. L’escalier intérieur en bois a été sculpté à la main pour offrir une finition unique pleine de détails artisanaux.
L’ensemble de la propriété reflète un niveau exceptionnel de finitions et de détails qui créent un sentiment constant de bien-être et de confort. La maison a actuellement une licence de location de vacances et est soumise à disponibilité.
En outre, avec sa structure actuelle, il y a la possibilité d’étendre la maison, offrant un plus large éventail de possibilités avec ce bâtiment emblématique.
Pour plus d’informations ou pour organiser une visite, n’hésitez pas à nous contacter. C’est une occasion unique d’acquérir une maison historique avec tous les équipements modernes dans l’un des endroits les plus privilégiés de Fuengirola.
Property Details
- SPCRM3610
- Maison
- 5 Bedrooms
- 3 Bathrooms
- 3 Ensuite
- 259 m² Built
- 108 m² Plot
- 185 m² Interior
- 74 m² Terrace
- Balcon
- Buanderie
- Cheminée
- Climatisation
- Climatisation individuelle
- Cuisine entièrement adaptée
- Côté plage
- Double vitrage
- Entrepôt
- Entrée sécurizé
- GresFloors
- GroundFloorPatio
- Internet - Fibre optique
- Internet - Wi-Fi
- Parc pour enfants proche
- Partiellement meublé
- Pièce de service
- Placards
- Proche de la mer/plage
- Proche des écoles
- Près de la ville
- Près du port
- Salle de séjour
- Services de proximité
- TV par satellite
- Terrasse découverte
- Terrasse privée
- Transport proche
- Vue sur la rue
- Vue urbaine
- À proximité des commerces
Price, costs & taxes
- Asking price 1.100.000 €
- Built m² 259 m²
- Price per m² Built 4.247 €
- IBI 890 € / year
The sale price does not include expenses and taxes. Additional costs for the buyer: registration and notary fees, ITP (Transfer Tax) or in its absence VAT, and AJD (Stamp Duty) on new properties and subject to some requirements to be met. These costs and taxes are different depending on the province / autonomous community where the property is located and even on certain specific aspects of the buyer. All details and information sheet are available upon request from Strand Properties. This information is subject to errors, omissions, modifications, prior sale or withdrawal from the market.
About the building
- Floors 3
- Property type Maison
- EPC In Progress
Listing agent
Strand Properties Real Estate agents in Fuengirola
Location
- Fuengirola Centro
- Fuengirola
- Malaga province
Disclaimer This is a property advertisement (REF SPCRM3610) provided and maintained by Strand Properties, Avda. Playas de Duque, Edif. Málaga 1C29660 Marbella - Puerto BanúsMálaga, and does not constitute property particulars. Whilst we require advertisers to act with best practice and provide accurate information, we can only publish advertisements in good faith and have not verified any claims or statements or inspected any of the properties. MalagasMLS.com does not own or control and is not responsible for the properties,website content, products or services provided or promoted by third parties and makes no warranties or representations as to the accuracy, completeness, legality, performance or suitability of any of the foregoing. We therefore accept no liability arising from any reliance made by any reader or person to whom this information is made available to.
