Cette charmante maison de ville est nichée sur une pente orientée sud, avec vue sur les oliveraies et le pittoresque village de montagne blanchi à blanc de Monda.
Monda, Malaga province
349.000 €
237 m² built, 3 bedrooms, 1 bathrooms, garden (communautaire), garage (privé)
Maison de ville for sale in Monda
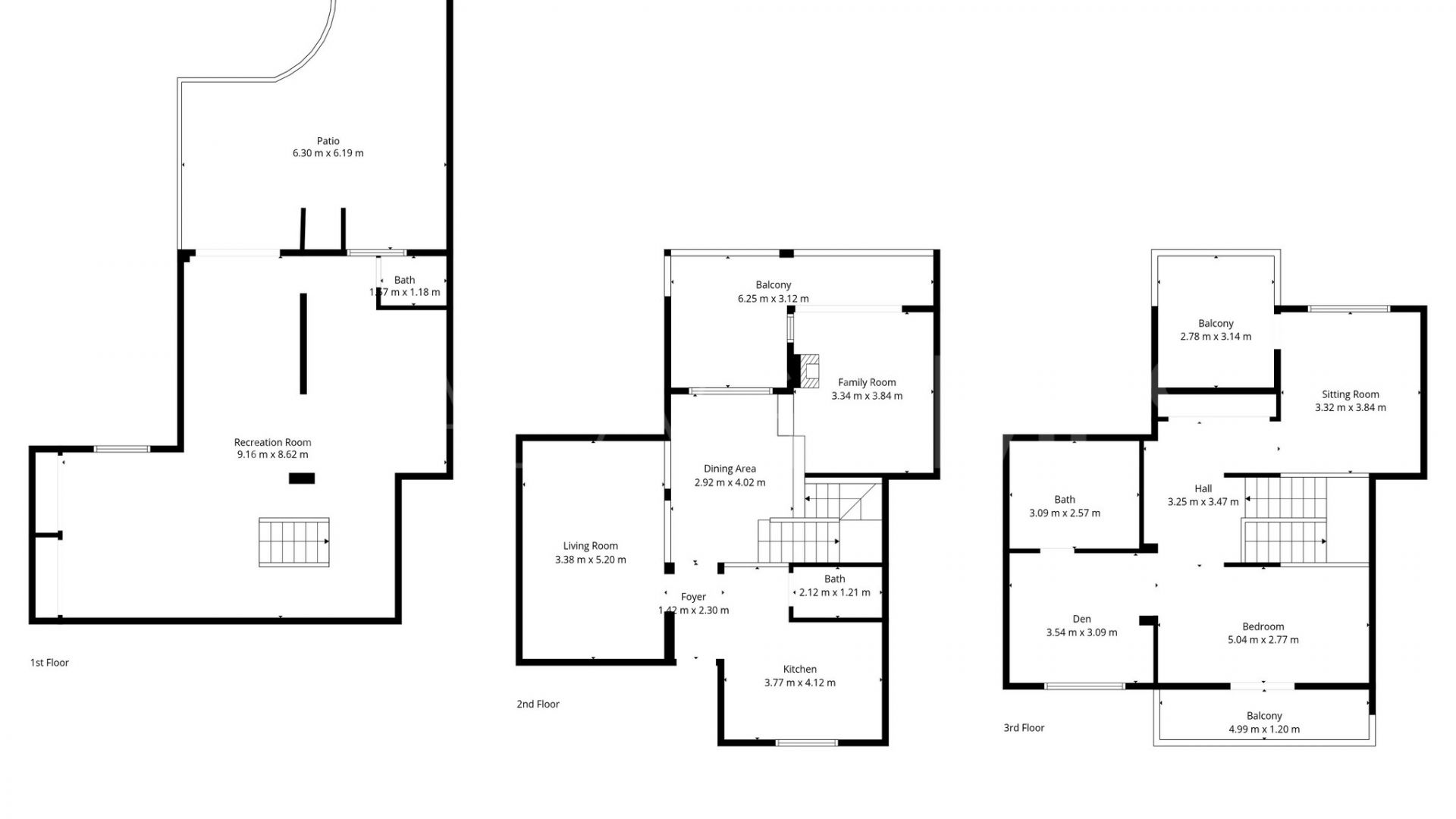
En entrant, vous trouverez un salon et une salle à manger à deux niveaux avec une cheminée confortable, une cuisine entièrement équipée et des toilettes invités. Depuis le salon, vous avez un accès direct à une belle terrasse avec de belles vues, parfait pour profiter du café du matin ou des couchers de soleil du soir.
À l’origine, le quartier près de l’entrée servait de garage privé, mais il fonctionne maintenant comme un showroom/lounge. Cet espace polyvalent pourrait facilement être transformé en une chambre supplémentaire, un bureau à domicile, ou une salle de télévision confortable.
Le propriétaire actuel a soigneusement repensé le niveau d’entrée pour créer une disposition ouverte et lumineuse qui permet à la luminosité naturelle de circuler dans toute la maison. À l’étage, la propriété dispose d’une suite parentale exceptionnellement grande qui pourrait être reconfigurée dans jusqu’à trois chambres simplement en ajoutant des diviseurs de pièces. Une deuxième salle de bains pourrait également être installée si vous le souhaitez. Ce niveau offre deux terrasses accueillantes – une pour le soleil, une pour l’ombre – toutes deux avec une vue agréable sur le paysage environnant.
Une caractéristique marquante de cette maison de ville est le semi-sous-sol expansif, actuellement utilisé comme studio créatif. Les possibilités sont infinies : une salle de loisirs ou d’artisanat, un studio de danse, des chambres d’hôtes privées, une salle de cinéma ou un bureau à la maison spacieux. De ce niveau, vous profitez de l’accès à un patio de jardin généreux, idéal pour des repas divertissants, en plein air et des rassemblements de barbecue.
La maison fait partie d’une communauté bien entretenue avec une atmosphère internationale amicale, offrant un environnement accueillant aux résidents de tous horizons.
Cette maison de ville est un excellent choix pour ceux qui cherchent une retraite paisible avec le charme authentique andalou, mais à distance de marche des commodités de Monda. Parfait comme résidence permanente, maison de vacances ou possibilité d’investissement.
Property Details
- BOHOMES1084
- Maison de Ville
- 3 Bedrooms
- 1 Bathrooms
- 237 m² Built
- 194 m² Interior
- 32 m² Terrace
- Garden (Communautaire)
- Garage (Privé)
- Bureau
- Cave
- Chambre de études
- Cheminée
- Climatisation
- Climatisation individuelle
- CloseToRestaurants
- Cuisine entièrement adaptée
- Dressing
- GroundFloorPatio
- MainsElectricitySupply
- Meubles en option
- Placards
- Proche des écoles
- Près de la montagne
- Près de la ville
- Services de proximité
- Terrasse découverte
- Terrasse privée
- Toilette d'invités
- Transport proche
- Vue campagne
- Vue montagne
- Vue panoramique
- Vue sur le jardin
- À proximité des commerces
Price, costs & taxes
- Asking price 349.000 €
- Built m² 237 m²
- Price per m² Built 1.473 €
- IBI 335 € / year
- Community Fee 21 € / month
The sale price does not include expenses and taxes. Additional costs for the buyer: registration and notary fees, ITP (Transfer Tax) or in its absence VAT, and AJD (Stamp Duty) on new properties and subject to some requirements to be met. These costs and taxes are different depending on the province / autonomous community where the property is located and even on certain specific aspects of the buyer. All details and information sheet are available upon request from Bo Homes & Villas. This information is subject to errors, omissions, modifications, prior sale or withdrawal from the market.
About the building
- Year Built 2001
- Floors 3
- Property type Maison de Ville
- EPC In Progress
Listing agent
Bo Homes & Villas Real Estate agents in Monda
Location
- Monda
- Malaga province
Disclaimer This is a property advertisement (REF BOHOMES1084) provided and maintained by Bo Homes & Villas, C/ Ramón Areces, 4, 3129660 MarbellaMálaga, and does not constitute property particulars. Whilst we require advertisers to act with best practice and provide accurate information, we can only publish advertisements in good faith and have not verified any claims or statements or inspected any of the properties. MalagasMLS.com does not own or control and is not responsible for the properties,website content, products or services provided or promoted by third parties and makes no warranties or representations as to the accuracy, completeness, legality, performance or suitability of any of the foregoing. We therefore accept no liability arising from any reliance made by any reader or person to whom this information is made available to.
