
141 m² parcela
Near golf, Estepona Casco Antiguo, Estepona, Málaga provincia
649.000 €
260 m² built, 168 m² plot
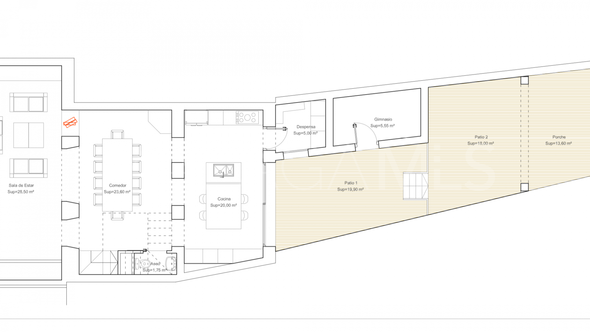
Una parcela muy bien situada a menos de 200 metros de la playa principal de La Rada en el casco antiguo de Estepona, con todos los servicios disponibles a pie y restaurantes y cafeterías a sólo un tiro de piedra. La parcela consta de 168 m2 donde se puede construir una gran casa familiar, incluyendo un amplio patio en la planta baja y una soleada terraza solarium con sol durante todo el día. Además, el proyecto incluye un gran salón de planta abierta al entrar en la propiedad, seguido de un comedor y una gran cocina con despensa adyacente; la cocina tiene cortinas de cristal al patio de la planta baja, que tiene acceso a un gimnasio y se distribuye en dos niveles con una zona de barbacoa y comedor al aire libre. En la planta baja también hay un aseo situado debajo de las escaleras.
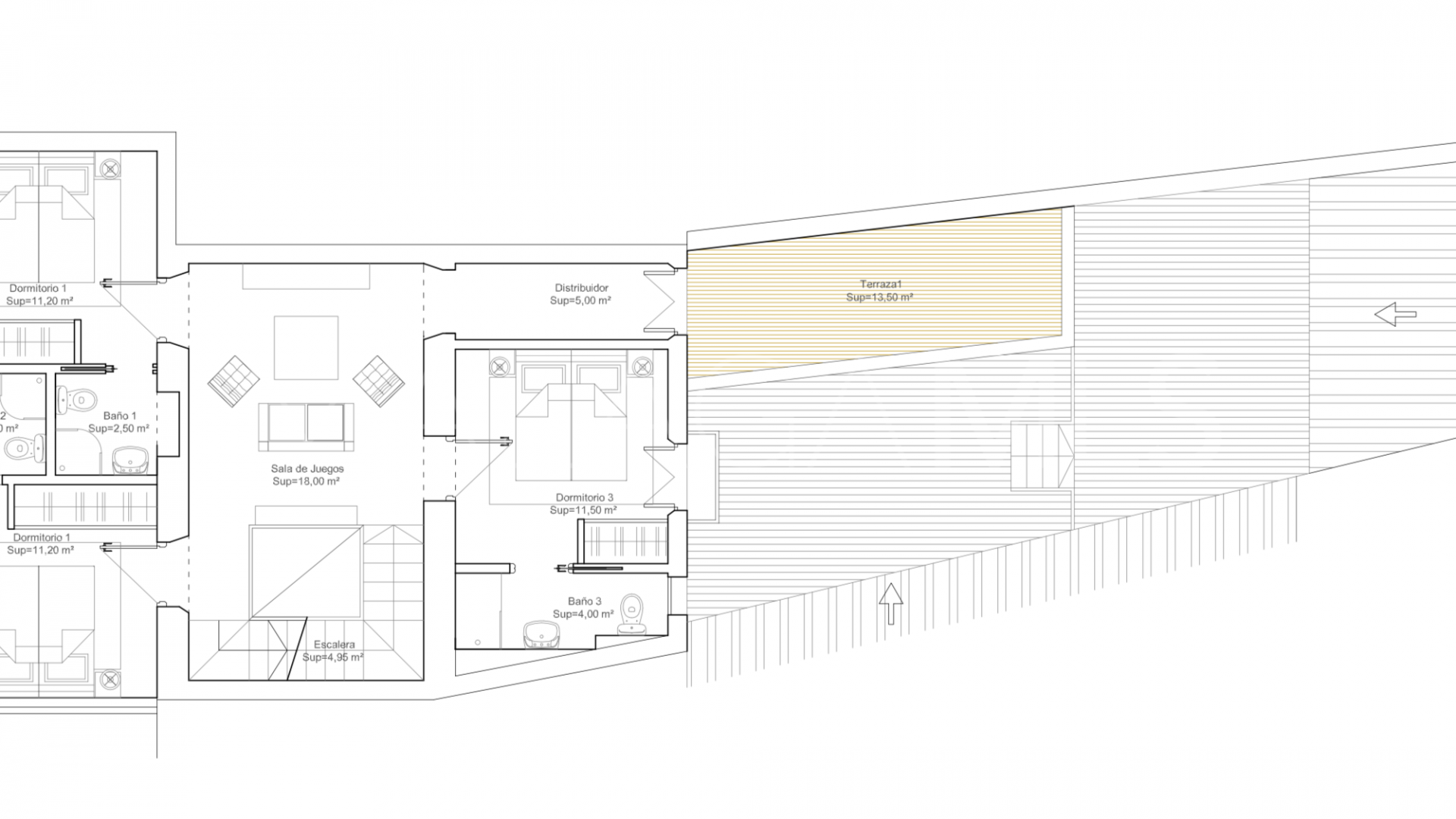
La planta intermedia consta de 3 amplias habitaciones dobles, cada una con baño privado y espacio para armarios empotrados, 2 de las habitaciones dan a la calle y tienen balcones tradicionales Juliette y la tercera habitación da al patio. Todas tienen acceso a una sala de tv/biblioteca en el centro y tienen acceso a una terraza compartida con vistas al patio y cocina de verano.
La tercera planta alberga el lujoso dormitorio principal con un gran vestidor y baño en suite con espacio para bañera y ducha, y acceso a una terraza solarium privada que recibe mucho sol durante todo el día y tiene espacio para tumbarse mientras disfruta de las vistas a los tejados del casco antiguo. Estepona ofrece una amplia gama de instalaciones y tiene un paseo marítimo recientemente renovado, playas de arena, y un montón de actividades familiares
The sale price does not include expenses and taxes. Additional costs for the buyer: registration and notary fees, ITP (Transfer Tax) or in its absence VAT, and AJD (Stamp Duty) on new properties and subject to some requirements to be met. These costs and taxes are different depending on the province / autonomous community where the property is located and even on certain specific aspects of the buyer. All details and information sheet are available upon request from Terra Meridiana. This information is subject to errors, omissions, modifications, prior sale or withdrawal from the market.
Terra Meridiana Real Estate agents in Estepona
Disclaimer This is a property advertisement (REF TMRP11161) provided and maintained by Terra Meridiana, C/ Caridad 6829680 EsteponaMálaga, and does not constitute property particulars. Whilst we require advertisers to act with best practice and provide accurate information, we can only publish advertisements in good faith and have not verified any claims or statements or inspected any of the properties. MalagasMLS.com does not own or control and is not responsible for the properties,website content, products or services provided or promoted by third parties and makes no warranties or representations as to the accuracy, completeness, legality, performance or suitability of any of the foregoing. We therefore accept no liability arising from any reliance made by any reader or person to whom this information is made available to.