Charmantes Stadthaus mit Meerblick und Führerschein – Vime Reserva de Marbella
Near golf, Cabopino, Marbella, Málaga provinz
289.000 €
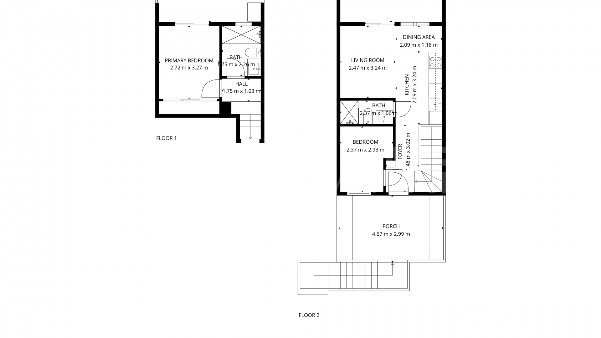
76 m² built, 2 bedrooms, 2 bathrooms, pool (gemeinschaftlich), garden (gemeinschaftlich)
Reihenhaus for sale in Cabopino
Willkommen in diesem gut gepflegten und belebten Stadthaus mit 2 Schlafzimmern und 2 Bädern, in der beliebten und üppigen Gemeinde von Vime Reserva de Marbella. Hier wohnen Sie in einer ruhigen Oase, nur 15 Gehminuten vom goldenen Strand und dem malerischen Cabopino Marina entfernt – einer der begehrtesten Gegenden von Marbella.
Das Eigentum
Dieses schöne Haus bietet drei geräumige Terrassen, mit der Spitze, die einen atemberaubenden Meerblick bietet – perfekt für das Sonnenbad, entspannte Abendessen oder unterhaltsame Familie und Freunde. Die obere Terrasse genießt den ganzen Tag Sonne, von morgens bis abends.
Im Inneren finden Sie ein modernes und geschmackvoll eingerichtetes Zuhause mit einer stilvollen Küche, hellem Wohnzimmer und zwei großzügige Schlafzimmer. Alles wurde für Komfort und einfaches Wohnen entwickelt – sofort ein- oder ausleihbar.
Dienstleistungen & Lifestyle
Vime Reserva de Marbella bietet erstklassige Einrichtungen für Entspannung und Freizeit:
• Restaurant und Bar
• Beheizter Innenpool und zwei Außenpools
• Fitness, Sauna und Massage
Hier können Sie das Gefühl von Resort-Stil das ganze Jahr über leben, mit allem, was Sie brauchen, in der Nähe.
Perfekte Investition mit Touristenlizenz
Dieses Anwesen verfügt über eine gesetzliche Mietlizenz und einen bewährten Miet-Track-Record – eine sichere und profitable Investition für diejenigen, die ein Ferienhaus mit hervorragendem Einkommenspotenzial suchen.
Die aktuellen Eigentümer arbeiten mit einem professionellen Mietmanagement-Unternehmen, das alles effizient und zu konkurrenzfähigen Preisen behandelt, so dass der Mietprozess einfach und problemlos.
Alles in der Nähe
• 3 Minuten zum nächsten Supermarkt
• 5 Minuten zur Bushaltestelle (Direktbusse nach Marbella & Fuengirola)
• 10 Minuten zur nächsten Apotheke
• 4–5 Minuten mit dem Auto zu beliebten Restaurants wie:
• Alberts, in Cabopino
• Max Beach, in Riviera del Sol
• El Oceano Beach Restaurant & Hotel
• Da Bruno Italienisch Restaurant
Sie finden eine große Auswahl an Restaurants, Unterhaltung und Aktivitäten in kurzer Entfernung.
Auf einen Blick:
• 2 Schlafzimmer & 2 Badezimmer
• 3 Terrassen (1 mit Meerblick)
• 2 Außenpools + beheizter Innenpool
• Fitness, Sauna und Massage
• Nur 15 Gehminuten vom Strand und Cabopino Marina
• Touristische Lizenz & starkes Mietpotenzial
Eine seltene Gelegenheit – ein Haus, das Urlaubsvibes, Komfort und eine sichere Investition in einem vereint.
Townhouses mit diesem Standort und Mietpotenzial bleiben nicht lange auf dem Markt.
Kontaktieren Sie uns heute für weitere Informationen oder für eine private Anzeige! HINWEIS: Erste Gelegenheit zum Betrachten ist der 6. Dezember, da das Haus bis dahin gemietet wird, keine Ausnahmen!
Property Details
- 361-11977P
- Reihenhaus
- 2 Bedrooms
- 2 Bathrooms
- 76 m² Built
- 14 m² Terrace
- Pool (Gemeinschaftlich)
- Garden (Gemeinschaftlich)
- 24Std Service
- 24Std Sicherheitsdienst
- Balkon
- Beheiztes Svhwimmbad
- Fitness
- Glastüren
- Guter Zustand
- Hafennähe
- Hallenbad
- Haustiere erlaubt
- Individuelle Klimaanlagen-Splits
- Internet - Wi-Fi
- Kinderspielplatz in der Nähe
- Klimaanlage
- Komplett eingerichtet
- Marmorböden
- Meer/Strandnähe
- Meerblick
- Nahe öffentlicher Verkehrsmittel
- Nähe Einkaufsmöglichkeiten
- Nähe Golfplatz
- Nähe Ortszentrum
- Nähe Schulen
- Private Terrasse
- SPA
- Überdachte Terrasse
Price, costs & taxes
- Asking price 289.000 €
- Built m² 76 m²
- Price per m² Built 3.803 €
- IBI 452 € / year
- Community Fee 250 € / month
The sale price does not include expenses and taxes. Additional costs for the buyer: registration and notary fees, ITP (Transfer Tax) or in its absence VAT, and AJD (Stamp Duty) on new properties and subject to some requirements to be met. These costs and taxes are different depending on the province / autonomous community where the property is located and even on certain specific aspects of the buyer. All details and information sheet are available upon request from Serneholt Estate. This information is subject to errors, omissions, modifications, prior sale or withdrawal from the market.
About the building
- Year Built 1991
- Floors 2
- Property type Reihenhaus
- EPC In Progress
Listing agent
Serneholt Estate Real Estate agents in Marbella
Location
- Cabopino
- Marbella
- Málaga provinz
Disclaimer This is a property advertisement (REF 361-11977P) provided and maintained by Serneholt Estate, CC Centro Plaza, Local 65-6629669 MarbellaMálaga, and does not constitute property particulars. Whilst we require advertisers to act with best practice and provide accurate information, we can only publish advertisements in good faith and have not verified any claims or statements or inspected any of the properties. MalagasMLS.com does not own or control and is not responsible for the properties,website content, products or services provided or promoted by third parties and makes no warranties or representations as to the accuracy, completeness, legality, performance or suitability of any of the foregoing. We therefore accept no liability arising from any reliance made by any reader or person to whom this information is made available to.
